❶2023年プラドクリスマスカードより「教会のある家」1

❶2023年プラドクリスマスカードより「教会のある家」1
建築設計事務所 PRADO(プラド)
2024/01/12

プラドクリスマスカード

教会のある家

教会のある家

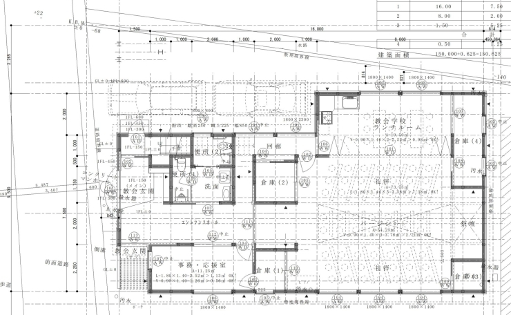
1階平面図

2階平面図

ナゼ瓦葺の切妻屋根なの?
松江イムマヌエル教会を2005年に設計(イムマヌエル=キリストの苗字)。
真っ白なチャペルではなく、日本の街に溶け込む設計に。
恩師である建築家の出江寛先生が昔神戸キリスト教会を設計する際に心がけたことであり、日本に根付くキリスト教のあり方を考えるときに日本の街に溶け込む設計が最適解ではないかと施主の牧師さんに説明。
チャペルとしての「神聖さ」「親しみ」「日常への溶け込み」と合わせて、この度の設計には牧師夫妻の住宅を兼ねなければならない。
→次回
教会に牧師4人家族の住むスペースを併設しなければならない!

2024年01月12日